为高密度环境而设计:现代主义如何持续塑造社会住宅
谈及现代主义居住风格时,人们或许首先会想到几个标志性的私人住宅项目 —— 勒·柯布西耶的萨伏伊别墅(Villa Savoye)、案例研究住宅(Case Study Houses),尤其是理查德·诺伊特拉(Richard Neutra)、皮埃尔·科尼格(Pierre Koenig)以及查尔斯和雷·伊姆斯(Charles and Ray Eames)设计的案例,还有密斯·凡·德·罗(Mies van der Rohe)和菲利普·约翰逊(Philip Johnson)设计的玻璃住宅。这些项目大多展现了理想化的现代生活愿景,坐落于如画般的风景之中,以尝试新型建造方法、材料和空间概念为特色。其设计崇尚开放,模糊了私人与公共空间的界限,且在很大程度上未受高密度、高效性、无障碍性、公共交通融合或社区考量等约束条件的限制。
这些现代住宅在当代住宅设计中仍颇具影响力,也出乎意料地为高密度住宅原则奠定了基础。最初在这些私人住宅中探索的公共与私人空间互动、模块化建造和预制装配等理念,已被应用于条件截然不同的社会住宅领域。





在东亚,这些原则持续影响着新加坡、台湾和香港等城市大规模住宅解决方案的开发,在这些地方,对高效、高密度居住方式的需求仍是亟待解决的紧迫城市挑战。
为高密度而设计:住宅策略中的现代主义理念
最为知名的现代主义住宅项目之一,是 1931 年在德国柏林落成的西门子城住宅区(Siemensstadt Settlement),该区域已被联合国教科文组织列为世界文化遗产。这一项目由一家私人住房合作社为西门子附近电气工厂的工人开发,提供了超过 1350 套经济实惠的公寓。该项目由包括沃尔特·格罗皮乌斯(Walter Gropius)和汉斯·夏隆(Hans Scharoun)在内的知名建筑师团队设计,力求摒弃传统的沿街块状开发和阴暗封闭的庭院布局。同时,该项目高度重视统一性 —— 确保所有租户的公寓面积相近,且都能平等地享受到自然光照和通风。
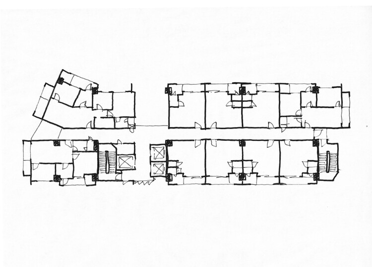
大约在同一时期,即 20 世纪 40 年代的巴西,在委托建造了一座被广阔草坪和湖泊环绕的私人豪宅的业主爱德华多·吉内尔(Eduardo Guinle)去世后,其继承人决定将该地产改造成一个遵循现代建筑和城市规划原则的住宅区。卢西奥·科斯塔(Lucio Costa)被选中负责该项目的设计,即爱德华多·吉内尔公园住宅区(Eduardo Guinle Park Housing),他尤为注重将现有景观与住宅楼群相融合。然而,这种对保留视野的执着导致建筑采用了非传统的东西朝向,使其长立面直接暴露在阳光下。为减少热量吸收,科斯塔巧妙地运用了遮阳板(brise-soleil),这一遮阳解决方案后来成为该设计的标志性特色。
科斯塔的规划采纳了现代主义开放式布局的原则,特别是在大型起居区域,室内墙壁主要与立面垂直排列。由于该开发项目的密度相对较低,因此并未采用传统的双面走廊设计,而是将不必要的流通空间降至最低,仅保留一个紧凑的电梯厅,服务于两部电梯和一部楼梯。值得注意的是,科斯塔还引入了双层单元设计,通过内部楼梯将起居和睡眠区域分隔开来。尽管这与查尔斯和雷·伊姆斯(Charles and Ray Eames)在其案例研究住宅项目中后来推广的阁楼式内部设计截然不同,但科斯塔的方法为灵活的公寓布局奠定了基础,至今仍影响着当代住宅设计。
战后时期,社会对保障性住房的需求达到了前所未有的高度。作为回应,勒·柯布西耶(Le Corbusier)设计了马赛公寓(Unité d'Habitation) —— 这是他职业生涯中的首个大型多户住宅项目。该项目旨在为法国战时轰炸的流离失所者提供住所,体现了现代主义关于集体生活、高效性和垂直花园城市的概念。该项目在形式上与早期的现代主义住宅实验相似,坚持了统一性和共享空间的核心原则。通过精心布置的中心核心区和双面走廊设计,实现了高度高效的单元布局,既最大化了住宅密度,又确保了每个单元都能公平地享受到自然光照和通风。此外,公共空间被巧妙地分布在各个楼层,最终在屋顶打造了一个供集体使用的活跃空间。
延续现代主义理念:东亚当代社会住房解决方案
现代主义原则持续塑造着当代社会住房解决方案,在东亚地区尤为显著。该地区城市深受西方建筑理论与城市规划理念的影响,尤其是战后发展起来的那些理论,并在此基础上对现代主义思想进行了适应与拓展。正如勒·柯布西耶的城市构想(如光辉城市)所展现的,将住房视为高效、模块化的建筑单元,并常与精心规划的交通系统相结合,这仍是高密度城市发展的蓝图。这些现代主义原则最初旨在解决战后重新安置问题和应对建筑技术的进步,对于那些力求在人口稠密且公共交通网络发达的地区为低收入居民提供住房的东亚城市而言,已被证明尤为有效。
新加坡、台北和香港等城市的人口密度位居世界前列,它们已将现代主义住房理念转化为当代建筑类型。在香港,2000 年之前的公屋发展已超越将公寓单元作为建筑模块的做法,而是将整个塔楼形态视为标准化、可重复的建筑类型,而非仅仅关注单个单元。尽管这些塔楼设计可能无法完全适应各种场地条件,也未充分考虑不同社区的需求,但它们在很大程度上直接借鉴了现代主义住房原则,即在新规划的城镇开发中复制建筑(或塔楼)。这些设计常在不同社区和场地条件下复制——也呼应了西门子城住宅区等项目的理念,即优先确保自然采光、通风的公平获取,以及通过最小化的垂直交通核心实现高效的空间规划。
这些城市共享的炎热、潮湿且建筑密集的气候条件,使得住房设计需额外考虑浴室卫生与舒适度。在香港,尽管单个公寓的面积有限,但香港房屋委员会在20 世纪 70 年代至 21 世纪 10 年代间规划的“三叉戟型”(Trident)、“和谐式”(Concord)和“双子星型”(Twin)等公寓类型,均融入了一项关键空间特征:确保每个浴室都能直接开窗,以在不依赖建筑层面(香港出于成本考虑,建筑层面未设置暖通空调系统,仅公寓层面有)的暖通空调系统的情况下,实现高效通风。这一策略在改善通风的同时,也导致了建筑形态的高度不规则,增加了表面积与体积比,形成了这些住房类型特有的锯齿状立面。
尽管许多建筑类型是在 30 至 40 年前开发的,但它们的影响在当代公屋中仍清晰可见。效率与成本效益仍是首要考量,但人们也越来越努力地平衡这些因素与居民的生活质量和空间舒适度。如今,该地区的社会住房开发仍遵循类似原则。然而,香港以往依赖标准化塔楼块的做法,已逐渐让位于一种更灵活的策略,即将单个单元视为可适应的模块。这在新加坡的建屋发展局(HDB)住房开发和台湾的社会住房努力中尤为明显。如此一来,住房开发便能更好地适应场地限制,同时保持根植于现代主义理念的核心设计策略。
为确保住房块体的设计公平且宜人,这些建筑类型的一个共同特点是强调单个单元和共享空间对日光的平等获取。此外,垂直中庭使日光能够深入建筑内部,提升了共享空间的品质。因此,关注效率、密度和城市规划的现代主义住房原则,继续塑造着当今东亚地区人们的生活方式。
本文是 ArchDaily “现代主义百年”专题的一部分。每月,我们都会通过文章、访谈、新闻和建筑项目深入探讨一个主题。我们邀请您深入了解我们的ArchDaily 专题。并且,一如往常,在 ArchDaily,我们欢迎读者的投稿;如果您想提交文章或项目,请联系我们。
