城市住宅舱重新定义紧凑居住空间,闲置办公改造成新型微住宅
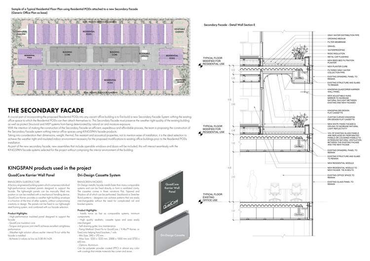
在建筑领域,竞赛常常成为激发创造力、开展实验以及解决问题的平台。对于 Wandrian 工作室的创始合伙人 Daniel Rojas 而言,在由 Buildner 和 Kingspan 联合赞助的 2023 - 2024 年度微型住宅(MICROHOME)竞赛中获奖,是一个具有变革意义的时刻。他的项目“城市住宅舱”,通过将闲置办公空间重新打造为紧凑、可持续的住宅,为应对全球住房危机提供了新思路。
Rojas 的设计在创新、功能性与可持续性之间取得了平衡,让人们得以一窥建筑如何能够应对当今一些最为紧迫的挑战。随着下一届竞赛的临近,Rojas 分享了他获奖项目的见解,并为未来的参赛者提供了建议。
访问微型住宅(MICROHOME)竞赛官网,了解2025 年公开赛的详细信息,并在 2 月 13 日截止日期前完成注册。
城市住宅舱:重新思考闲置空间
Rojas 的获奖设计方案提出了“城市住宅舱”这一构想,即适合安置在改造后的办公楼内的紧凑型居住单元。每个住宅舱均配备基本生活设施 —— 包括浴室、厨房、洗衣区、一张大床以及一个灵活可变的生活空间,同时还融入了半私密的户外区域,以提升居住舒适度。
其一大突出特点是采用了场外预制系统,该系统使得住宅舱能够高效地建造、运输和组装。这种方法不仅有助于解决住房短缺问题,还能为利用率低下的城市空间注入新的活力。
Rojas 解释道:“这个项目是对两个关键问题的回应:全球住房短缺问题以及日益增多的闲置办公楼问题。”“我们的目标是打造一种实用、可持续且经济实惠的解决方案,使其能够适应全球各地的城市环境。”
Wandrian 工作室的设计理念
Wandrian 工作室由 Rojas 和他的妻子 Kimberly Kolkovich 于 2018 年创立,该工作室融合了室内设计与建筑领域的专业知识,致力于提供富有创意且实用的解决方案。Rojas 表示:“我们的目标是通过彰显现有条件,同时以创造力和务实精神实现客户目标,来提升每个项目的品质。”虽然他们的工作通常聚焦于住宅和酒店业领域,但工作室的适应性使他们能够探索多样化的项目,例如微型住宅(MICROHOME)竞赛项目。
应对微型住宅(MICROHOME)竞赛要求:提出有力论点
对 Rojas 而言,设计竞赛取得成功的关键在于有一个清晰的愿景。“要想获胜,你需要一个有力的论点,”他解释道。微型住宅(MICROHOME)竞赛的题目宽泛,重点聚焦可持续性、高效性和经济性,这鼓励参赛者去明确具体的挑战。罗哈斯和他的团队将目光锁定在空置办公空间的再利用上,这一挑战源自他在纽约市担任建筑师的经历。
“改造办公楼涉及诸多独特挑战——比如楼板深度、层高以及无障碍设计(ADA)要求等,”他说道,“我们的策略是制定能够全球适用的通用原则,以确保方案的灵活性和可扩展性。”

在限制条件与创意愿景间寻求平衡
微型住宅(MICROHOME)竞赛要求设计面积不得超过 25 平方米,这促使参赛者针对紧凑型居住空间展开创造性思考。Rojas 将这一限制视为一个机遇。“我们开发了一套模块化系统,该系统提供基本的生活组件,同时留出灵活空间,可用于睡眠、用餐和放松等多种用途,”他解释道,“简约性和用户自主掌控性至关重要。”
该设计还强调可持续性,采用以环保材料建造的预制模块。受模块化办公隔间启发,这些住宅舱优先考虑易于组装、便于运输以及对环境影响最小化等特点。
获奖带来的影响
赢得微型住宅(MICROHOME)竞赛对旺德里安(Wandrian)工作室而言是一个关键转折点。“就个人而言,能在如此众多杰出人才中获认可,我深感谦逊,”Rojas 说道,“对于我们的工作室而言,这一认可让我们在国际上崭露头角,也带来了新的机遇。我们甚至已经接到邀请,将我们的设计应用于受灾地区的临时住房解决方案中。”
Rojas 补充道,这场竞赛加深了工作室对可持续发展的承诺。“如今,可持续发展比以往任何时候都更成为我们设计实践中不可或缺的一部分。它不仅仅是一个特色 —— 而是一项指导原则。”


给未来参赛者的建议
随着 2025 年微型住宅(MICROHOME)竞赛的筹备工作逐步展开,Rojas 鼓励建筑师们勇敢迎接挑战。“首先要确立一个有力的论点,并专注于解决某个具体问题,”他建议道,“构建一个引人入胜且简洁明了的故事线。同时,切勿低估清晰且富有思考性的图纸的重要性。”
他强调,即便对于那些未能获奖的参赛者而言,这场竞赛也是一次宝贵的经历。“竞赛能磨砺你的设计流程,提升团队协作能力,并助力你作为设计师不断成长。关键在于突破界限,并从这段历程中汲取经验。”
加入 2025 年微型住宅(MICROHOME)竞赛
由 Buildner 主办、Kingspan 赞助的 2025 年微型住宅(MICROHOME)竞赛设立了 10 万欧元的奖金池,旨在表彰为紧凑型住房提供的创新且可持续的解决方案。该竞赛面向专业人士和学生开放,要求参赛者设计一座模块化、节能型的微型住宅,其占地面积最大不得超过 25 平方米。
主要目标包括:
- 创新与功能性:融合实用性、美学设计与技术。
- 可持续性:采用环保材料和节能系统。
- 经济可负担性:让各类人群都能负担得起微型住宅。
- 适应性:设计适用于城市、乡村或离网等多种环境。
奖金结构:
- 一等奖: €40,000
- 二等奖: €20,000
- 三等奖: €10,000
- Buildner 学生奖: €10,000
- 可持续奖: €10,000
- Kingspan 奖: €10,000
竞赛详情
- 报名截止日期:2025 年 2 月 13 日
- 提交截止日期:2025 年 3 月 18 日
- 获奖者公布日期:2025 年 4 月 29 日
评审团
评审团成员包括来自 Snøhetta、扎哈·哈迪德建筑事务所(Zaha Hadid Architects)和 MAD 建筑事务所等知名公司的著名建筑师和可持续发展专家。
重新定义紧凑型居住空间
MICROHOME 竞赛为你提供了一个展示紧凑型住房大胆创新解决方案的绝佳机会。无论你是经验丰富的建筑师,还是初露锋芒的新锐人才,这都是你获得全球认可、为可持续住房的未来贡献力量的契机。
访问 MICROHOME 竞赛官网以获取详细信息并报名参赛。突破界限,激发变革,重新定义紧凑型居住的无限可能。
本文既是对 Wandrian Studios 所获成就的赞颂,也是呼吁建筑师们踊跃参与 MICROHOME 2025 竞赛的行动号召。你会成为下一个塑造住房未来的人吗?
